46 viviendas, garaje y piscina.

2017 (P) - 2020 (O)

Murcia. España.

Proyecto de edificio residencial en Murcia. Se encuentra en una de las zonas de mayor desarrollo urbanístico y demanda social.

Proyecto de edificio residencial en Murcia. Se encuentra en una de las zonas de mayor desarrollo urbanístico y demanda social.

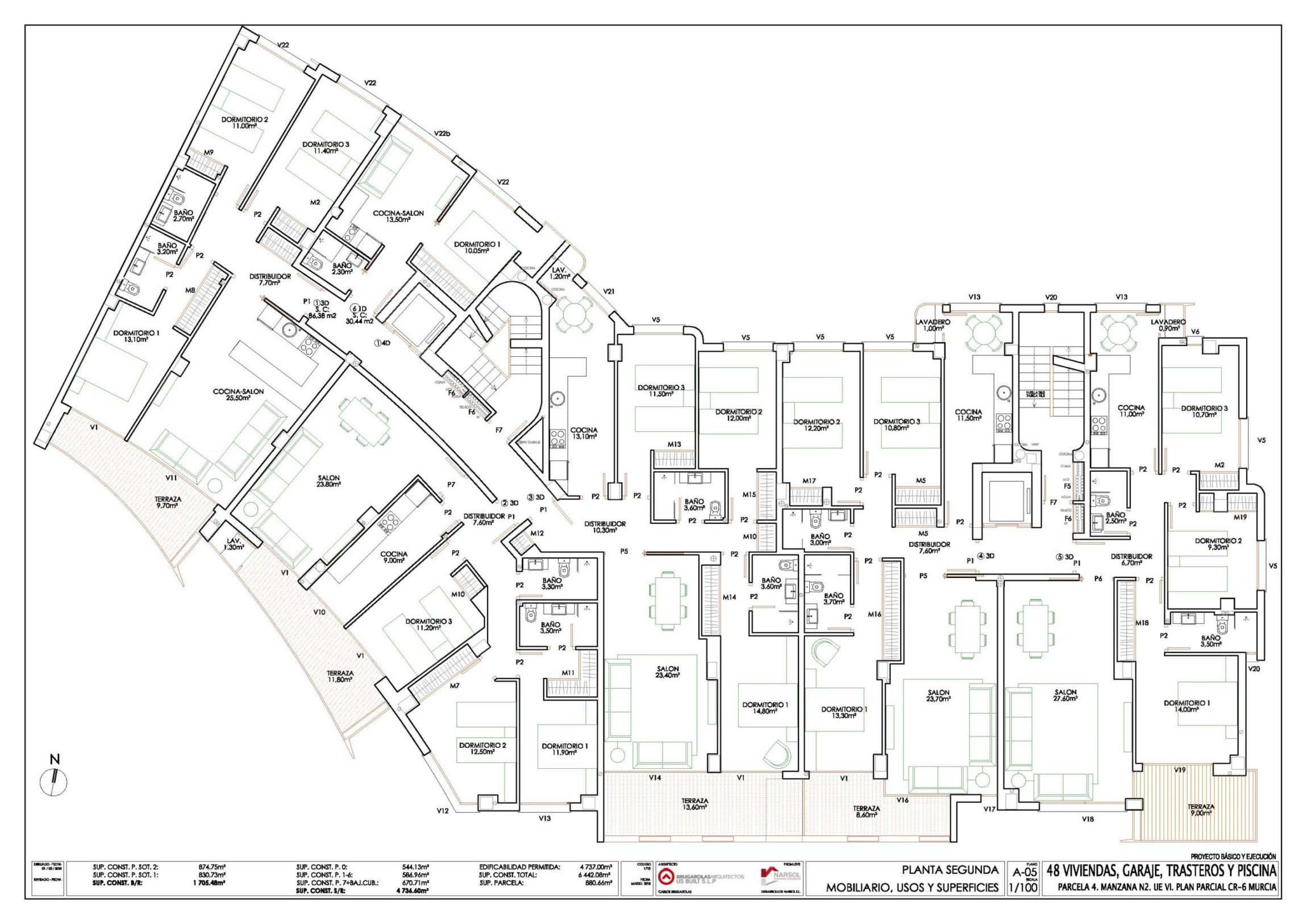
La promoción inmobiliaria  es de cuarenta y seis viviendas de diferente tamaño (de cuatro, tres, dos y un dormitorios, en dúplex, áticos y viviendas con terrazas) en nueve plantas de altura sobre rasante y dos sótanos para aparcamiento y trasteros.

El proyecto ofrece, así mismo, una serie de servicios y equipamiento comunitarios, como piscina climatizada exterior, gimnasio y “sala gourmet”.