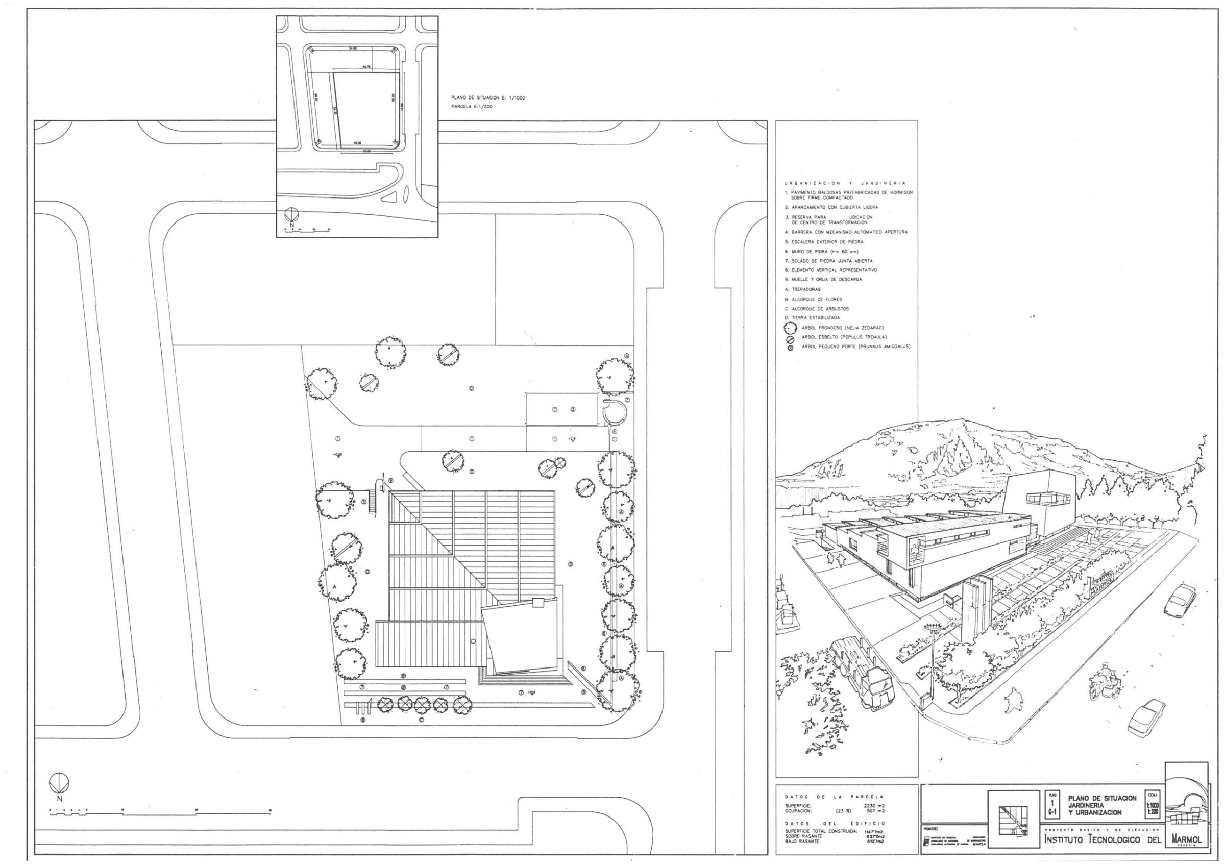
Centro Tecnológico del Mármol

1992 (P) - 1994 (O)

Cehegín, España.

Un centro como este no podría sino ser en sí mismo un atractivo ejercicio de uso de la piedra, combinando tipos y colores de mármol, explorando formatos insólitos de losas, acabados sugerentes de sus superficies

Junto con Camilo Corbí y Francisco Sola, Arquitectos.

Pieza exenta de planta cuadrada, posicionada en la parte central de la parcela. Tiene fundamentalmente dos plantas, una en semisótano y la baja. Así mismo se dispone un ala en una segunda planta, así como una entreplanta.

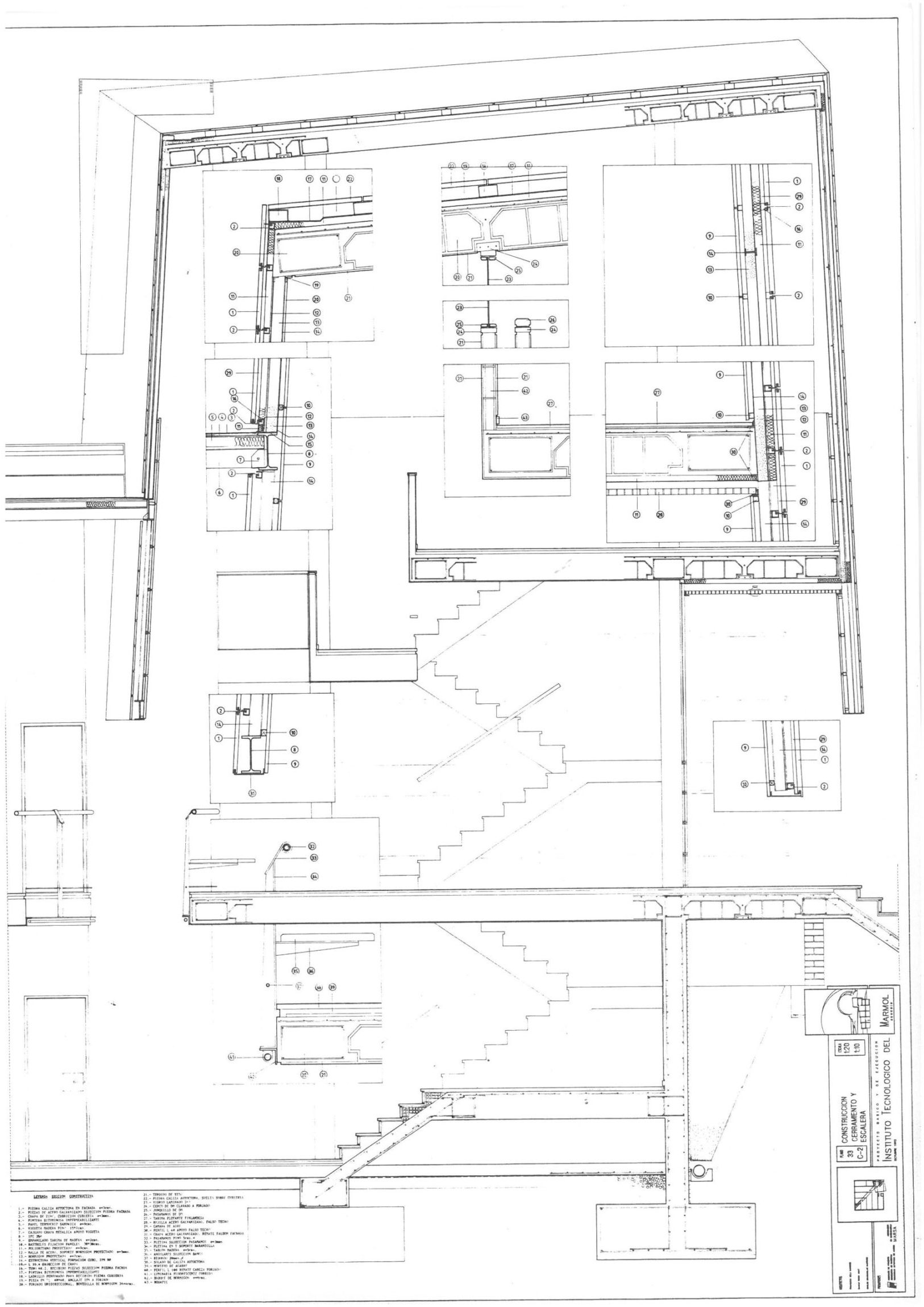
Un prisma irregular de piedra se encastra en la cubierta, dejando un sugestivo espacio interior lleno de intersticios inquietantes y pulsaciones de espacio latente.

Un centro como este no podría sino ser en sí mismo un atractivo ejercicio de uso de la piedra, combinando tipos y colores de mármol, explorando formatos insólitos de losas, acabados sugerentes de sus superficies. 

Formas puras, que levantan un edificio a medio camino entre la expresividad industrial y el carácter emblemático de un monumento de representación.