Colegio en Teulada

2001 (P) -2004 (O)

Otura, España.

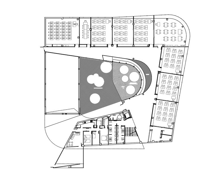
Con Francisco Sola, arquitecto. La comunicabilidad del edificio con el exterior es total.

La comunicabilidad del edificio con el exterior es total.

En un caso la zona más íntima del colegio busca el exterior (digamos que lo edificado añora el jardín: la sombra y el frescor de los árboles, el deseo del juego) y en otro caso es el exterior (más público, más institucional y retórico) el que invade lo construido.

Un espacio ajardinado interior se desarrolla en dos niveles, en torno a los cuales corren los espacios de circulación, vinculados espacialmente por dobles alturas y funcionalmente por rampas.