Edificio Residencial en Murcia

Murcia. España.

2016 (P) - 2018 (O)

Proyecto de vivienda colectiva en Murcia (España). Dos sótanos y nueve plantas sobre rasante de un edificio de 30 viviendas y más de 6.200 m2 construidos ubicado en la zona residencial más prestigiosa de la ciudad.

2016 (P) – 2018 (O)

Proyecto de vivienda colectiva en Murcia (España). Dos sótanos y nueve plantas sobre rasante de un edificio de 30 viviendas y más de 6.200 m2 construidos ubicado en la zona residencial más prestigiosa de la ciudad.

La distribución general de usos: garaje y trasteros en sótanos, local comercial en planta baja y viviendas en el resto de plantas sobre rasante (primera a séptima).

En la fachada Este y desde una zona verde, encontramos el ingreso peatonal; existe una primera cancela que cierra un espacio exterior previo al acceso acristalado al zaguán. Ese espacio balconea sobre un patio inglés ajardinado que garantiza iluminación y ventilación al local comunitario y aparcamiento del sótano.

Ya dentro del portal del edificio encontramos en embarque a los dos ascensores, el arranque de la escalera general de las viviendas y el desembarco de la escalera que asciende del sótano.

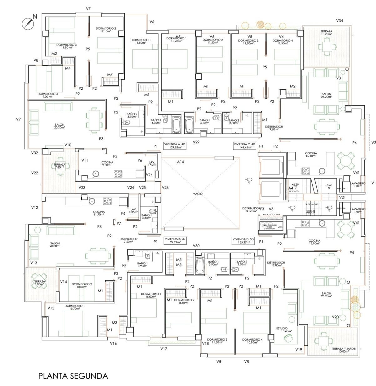
El portal de las viviendas tiene comunicación visual con un gran foyer a cota de planta primera. Nuestra estrategia de diseño ha sido evitar un distribuidor vecinal por planta, ubicado en el centro del edificio y de ridículas dimensiones que diera acceso a las correspondientes viviendas. Esta solución, usada habitualmente, obliga a que las viviendas tengan un patio interior al que vuelca la cocina o incluso diversas habitaciones. La solución tiene grandes inconvenientes de tipo funcional, aportando un nulo valor social a los espacios comunes de distribución.

Nuestra propuesta, sin embargo, consiste en vaciar el interior del edificio creando un foyer interior de gran altura, ajardinado y consintiendo las vistas y entrada de luz natural desde el exterior. A este espacio vacío se abren los  de espera de ascensores y los pasillos de ingreso a las viviendas. Tal estrategia permite igualmente que los espacios de aseo cuenten con una entrada de luz natural perimetral en su parte alta. En planta primera, se crea un lugar comunal con alcorques de vegetación. Por tanto, solución de gran eficiencia funcional y distributiva con meritorio valor espacial.

En cada planta excepto la primera, se proponen cuatro viviendas con la solución de distribución comercialmente más demanda en este momento: dos viviendas de tres y otras tantas de cuatro habitaciones.

Las viviendas más grandes se ubican en las orientaciones noreste y sureste (con fachada al jardín), mientras que las más pequeñas miran a la avenida.

La planta primera dispone de 6 viviendas de 4, 3 y 2 dormitorios.

Independientemente del tamaño, todas las viviendas excepto las centrales de planta primera, cuentan con un programa completo e idénticas virtudes funcionales. Repasémoslas.

  • Zona de día (salón y cocina) diferenciada de la de noche (dormitorios).
  • Existencia de vestíbulo general de acceso de tamaño notable, incluso con armario para las viviendas de cuatro habitaciones.
  • Salón en esquina, gozando de al menos dos orientaciones
  • Espacios multifuncionales. La configuración de las habitaciones permite diversos usos; en el caso del salón: área de tertulia y televisión, espacio de comedor, rincón de lectura o música, más su espacio exterior en la terraza. La cocina tiene un área de cocinado y otro de comida informal, bien dimensionado e iluminado, así como al de lavadero tendedero contiguo. En los dormitorios contamos por su dimensión con espacio para dormir, estudiar junto a la ventana y área frente al armario, incluso con vestidor independiente en el caso del principal.
  • Apertura al exterior. La luz es sinónimo de vitalidad y gusto de vivir. Somos generosos en la apertura de huecos al exterior buscando las hermosas vistas de que disfrutamos al jardín, a la ciudad, el paisaje o al monte. En el caso del comedor de las viviendas de cuatro dormitorios, el salón comedor cuenta con tres ventanales. En otros casos, dormitorios y cocinas disfrutan de dos huecos. Para evitar los rigores del clima con estos generosos ventanales, incorporamos medidas pasivas de control solar (voladizos, terrazas o marquesinas) y activas (ventanales con rotura de puente térmico, vidrio doble de grandes espesores de vidrio y cámara, 6/12/6, y con emulsión superficial de control solar. Como hemos referido, no existe ninguna pieza esencial de la vivienda a patio interior. Incluso la mayoría de los baños disfrutan de iluminación natural al foyer.
  • Es muy estimable que se puedan vincular espacialmente los espacios entre sí. La vida familiar es suficientemente rica para que algo de flexibilidad aportemos con nuestro diseño, incluso en soluciones promocionales como estas. En este sentido, gracias a grandes puertas correderas, podemos vincular la cocina y el comedor, el salón y el vestíbulo, estar y terraza o incluso dos dormitorios.
  • Valorización de espacio exterior. Las terrazas tienen generosas dimensiones (de más de diez metros en casi todos los casos) y proporciones tales que permiten un usos cómodo para comer seis personas o colocar tumbonas.