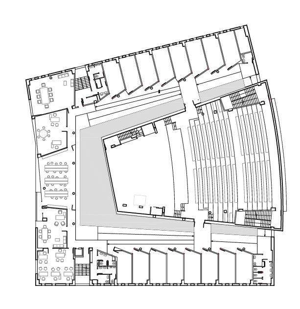
Escuela de música. Torrepacheco

1996/8 (P) - 1999/2006 (O)

Torrepacheco, Murcia.

Con Francisco Sola, arquitecto. El aspecto exterior del edificio es el de una sólida roca, tallada con brutalidad expresiva

El aspecto exterior del edificio es el de una sólida roca, tallada con brutalidad expresiva.

Parte de ella se percibe desde el espacio interior del edificio y la parte exterior es vislumbrada incluso a través de los lucernarios.

Pero esta gran masa cuenta con su interior excavado como si fuera una geoda, tallando un espacio -la sala de conciertos- tan rico como desconcertante.