Escuela Oficial de Idiomas.

2000 (P) - 2003 (O)

Murcia, España.

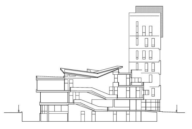
Con Francisco Sola, arquitecto. Una gran rampa que se desarrolla sobre sí misma en deformada espiral. Nace a nivel de la calle para ascender en suave pendiente enrollándose sobre sí misma y rodeando un espacio interior a toda la altura, iluminado cenitalmente.

En la parte exterior de esta cinta de moebius ubicamos las aulas y en el perímetro interior el pasillo de distribución. Aulas muy accesibles para el alumno, de fácil localización y referenciación, que permiten un intercambio social, cultural y humano. La segunda unidad incluye el programa administrativo, departamental y de dirección.

Se trata de un edificio desarrollado en altura, conectado con el área docente en los puntos donde coinciden (planta baja, primera y segunda). Así mismo contribuye a crear una referencia en el contexto urbano donde se encuentra. En una tercera área hemos ubicado el espacio de lo audiovisual y tecnológico, elemento clave de la pedagogía de los idiomas.

Se asienta en un vaso semienterrado, proyección de lo ocupado por el resto de la edificación. Está iluminado y ventilado por el perímetro aprovechando el desarrollo inclinado de la zona de aulas.