Instituto en Gata de Gorgos

Gata de Gorgos, España.

Edificio de unitaria lectura pero del que apreciamos un primer cuerpo de tres plantas de altura y desarrollo lineal que incluye los espacios de docentes y de gestión comunes.

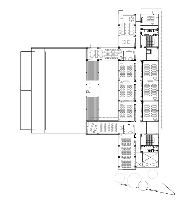
Edificio de unitaria lectura pero del que apreciamos un primer cuerpo de tres plantas de altura y desarrollo lineal que incluye los espacios de docentes y de gestión comunes. En otra pieza de menor altura y proporción casi cuadrada ubicamos el programa deportivo. Uno y otro se encuentran separados en planta baja por un espacio ajardinado, pero vinculados volumétricamente en plantas primera y segunda por sendos cuerpos volados.