Vivienda Unifamiliar en Madrid

2014 (P) - 2016 (O)

Madrid, España.

Hemos querido ser respetuosos con la presencia exterior de la vivienda, en primer lugar porque tiene una muy aceptable calidad estética y, en segundo lugar, porque la vivienda en cuestión forma parte de una pequeña urbanización de propiedades adosadas

Este trabajo incluye la reforma integral de una vivienda entre medianeras, añadiendo una ampliación de nueva planta.

Los criterios de intervención has sido:

  • Ampliación de la planta sótano para crear una gran sala de estancia informal. Esta sala adquiere valor al permitir -con la demolición de parte de los muros y la excavación de parte del jardín- que cuente con una gran fachada acristalada al exterior, aprovechado que el terreno baja en esa dirección.
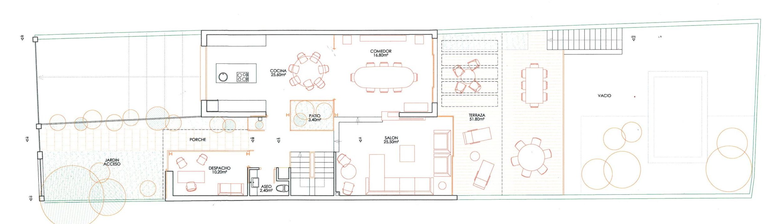
  • Ampliación de la planta baja, para poder disfrutar de un pequeño despacho.
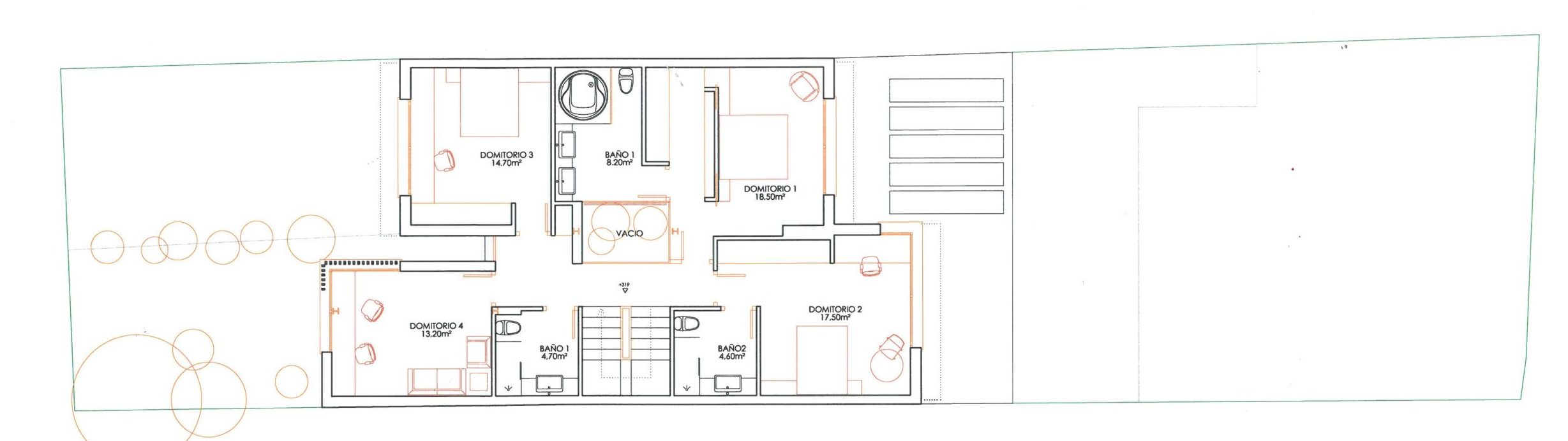
  • Aumento de tamaño de la planta primera, de modo que se obtengan cuatro dormitorios con tres baños.

Así mismo, hemos tratado de mejorar los valores ambientales de la vivienda:

  • Se ha perforado el interior de la casa con un patio de reducidas dimensiones. Actúa como pozo de luz y aportando ventilación extra a la vivienda. Este tragaluz arranca desde planta baja y llega hasta la cubierta, estando al nivel del acceso cubierto por un pequeño jardín. Indudable el papel de confort ambiental y de control y mejora higrotérmica que supone.
  • Buscamos la integración de los interiores de la vivienda hacia los exteriores ajardinados, especialmente en la planta baja (salón, comedor, despacho y cocina), pero también en la sótano, que en su parte posterior acaba adquiriendo un magnífico valor de uso y en la planta primera (dormitorios orientados a la fachada trasera). Siempre que se ha podido, hemos creado generosas terrazas como elemento intermedio entre la vivienda y el jardín con innumerable potencial de uso por parte de la familia.
  • Maximizamos la diafanidad y la comunicabilidad de los espacios de modo que se permita el uso de los mismos conforme a variables condicionantes funcionales.

Es innegable que el grado de creatividad formal de una reforma interior esté relativamente condicionado. Hemos querido ser respetuosos con la presencia exterior de la vivienda, en primer lugar porque tiene una muy aceptable calidad estética y, en segundo lugar, porque la vivienda en cuestión forma parte de una pequeña urbanización de propiedades adosadas. La totalidad de las viviendas de la manzana tiene mismos elementos de fachada (ladrillo oscuro y bandas horizontales de piedra artificial de color blanco) si bien cada una de ellas en singular goza de gran autonomía formal y compositiva.

Es por ello –y porque hemos elegido un color (el blanco) ya presente en la paleta cromática de la fachada- por lo que nuestra propuesta tiene un confortable acomodo compositivo y una asegurada convivencia formal en la calle.

Solo una cuidadosa mirada apreciara lo ampliado como tal, revelado tan solo por la cubierta plana de aquel y unos huecos relativamente más generosos que los restantes.

Papel complementario relevante lo ofrece la complicidad manifiesta entre la vivienda y los exteriores, por lo que supone de presencia de luz y aire en el vivir de la casa, así como las posibilidades de lugares intermedios, al abrirse sus cerramientos de cristal y mezclarse el interior y exterior.

En un lugar determinado, esta vocación de buscada ambigüedad entre el exterior y el interior de la vivienda, cristaliza de modo programático. Se trata de parte de la fachada de la vivienda en su parte anterior que se termina como fachada vegetal.