Ampliación del Instituto "Las Espeñetas"

2019 (P) - 2020 (O)

Orihuela (Alicante)

Ampliación de un instituto existente en Orihuela (Alicante), denominado «Las Espeñetas». Se le dota complementariamente de dos nuevos pabellones exentos, conectados con los previos a través de porches cubiertos que faciliten a los alumnos el cambio de aulas sin necesidad de quedar expuestos a las condiciones meteorológicas adversas

Ampliación de un instituto existente en Orihuela (Alicante), denominado «Las Espeñetas». Se le dota complementariamente de dos nuevos pabellones exentos, conectados con los previos a través de porches cubiertos que faciliten a los alumnos el cambio de aulas sin necesidad de quedar expuestos a las condiciones meteorológicas adversas

El primero de ellos disfruta de mayor envergadura: forma rectangular. En él se encuentran  aulas adicionales de Educación Secundaria, los aseos y la cafetería.

El segundo cuerpo -mas pequeño- incluye exclusivamente el aula de música.

El cuerpo principal tiene una forma rectangular pero con fachadas de exposición solar muy castigada. De modo que planteamos una solución de fachada con ventanales verticales a modo de escamas de pez, de modo que se garantice una óptima iluminación sin exposición solar extraordinaria, y sin deslumbramiento. Con este recurso sencillo, de gran expresividad formal, damos respuesta a esta problemática orientación.

La distribución, por lo demás, ordenada: pasillo central y dependencias a ambos lados (las aulas, cafetería y aseos) corredor de circulación que arrancando un generoso vestíbulo acristalado abierto al porche, termina en una salida igualmente vidriada a la parte opuesta del patio. Procuramos un acceso independiente para la pequeña barra de la cantina, con un circuito de suministros ajeno al trajín del patio de juegos.

Este será un recurso formal universal, tanto para este edificio, como para el aula de música.

Para enfatizar este gesto de elegante y esencial trazo, resolvemos de forma redondeada las esquinas, y forzando un cambio en el aparejo del ladrillo en la zona central de los muros, respecto de las bandas superior e inferior.

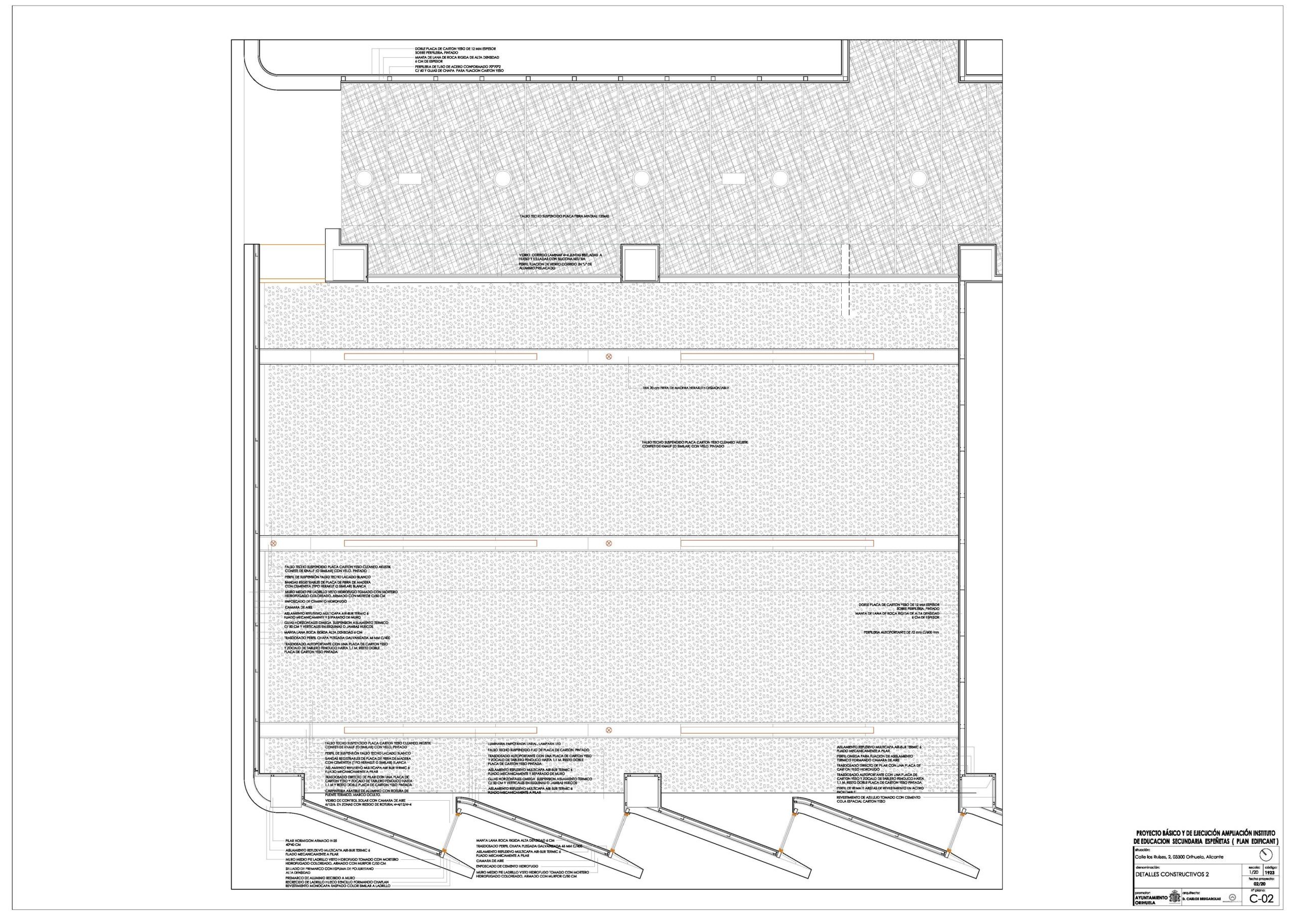
Hemos cuidado unos acabados interiores de gran confort acústico; el uso docente es especialmente exigente con este aspecto.