Ampliación de Instituto Thader en Orihuela

2020 (P) - 2023 (O)

Orihuela. España.

El proyecto contemplaba dotar al instituto existente con nuevas instalaciones docentes y deportivas en su parcela, concretamente un edificio (con aulas, laboratorios, departamentos y despachos), un pabellón deportivo y pistas deportivas, huerto escolar, jardines y zona de recreo y descanso.

El Ayuntamiento de Orihuela (Alicante) convocó un concurso de arquitectura para la ampliación de Instituto Thader, siendo nuestra oficina la seleccionada para la redacción del proyecto y la dirección de obras.

El proyecto contemplaba dotar al instituto existente con nuevas instalaciones docentes y deportivas en su parcela, concretamente un edificio (con aulas, laboratorios, departamentos y despachos), un pabellón deportivo y pistas deportivas, huerto escolar, jardines y zona de recreo y descanso.

Aulario y pabellón deportivo quedan conectados entre sí y respecto del edificio anterior, a través de un porche, ampliación del existente.

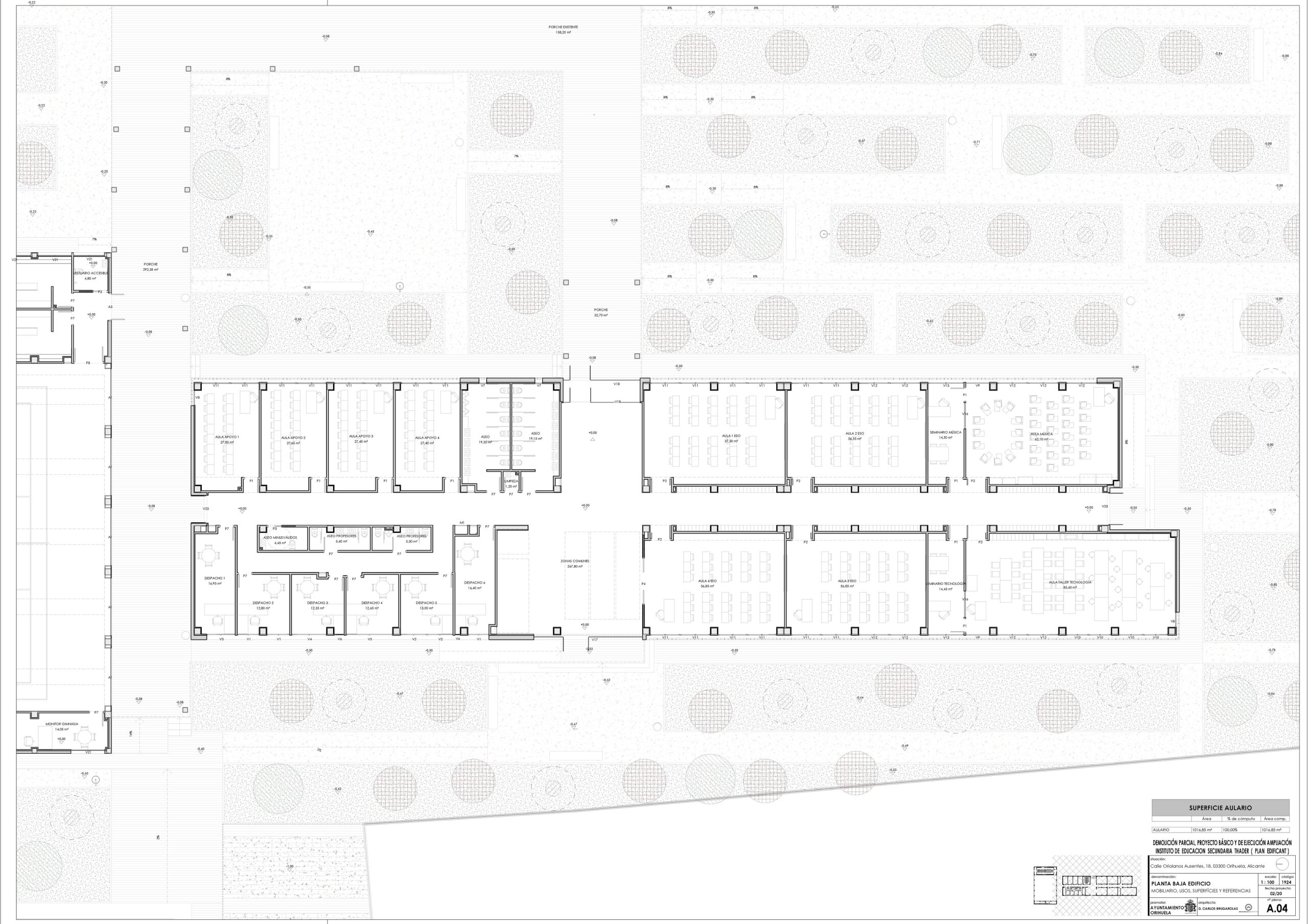
La solución arquitectónica del aulario responde a un sencillo patrón compositivo, con gran vestíbulo central con iluminación cenital, del que arranca un pasillo longitudinal de acceso a aulas, laboratorios y despachos. dada la extrema orientación de sus fachadas, se opta por superponer los grandes ventanales de aulas con una celosía de ladrillo, combinada localmente con marquesinas para el control solar.

En cuanto al gimnasio, sus dos fachadas longitudinales se resuelven con puertas basculantes, de modo que puedan ser abiertas si el uso o el clima lo sugieren, prolongando su superficie en la parcela inmediata más allá de lo construido, al exterior o bajo el resguardo del porche. Igualmente, cuentan con elementos de iluminación natural y ventilación transversales a la sala, que garantizan una homogénea luz natural, en ausencia de deslumbramiento.

Sus sobrias pero elegantes terminaciones en madera, sugieren un uso de este gran espacio para otras actividades, más allá de las puramente deportivas.

En el diseño de la solución estructural, se ha contemplado una eventual ampliación del aulario en altura, reservando para ello en el diseño la posible ejecución de escaleras y ascensor.

La actuación suma una superficie construida aproximada de 1.800 m2 , con un importe total de obra de unos 3.350.000 €.

La ejecución tuvo una complejidad adicional, pues las obras se llevaron a cabo manteniendo la absoluta actividad del Centro, lo que obligó a la programación de trabajos en temporadas no lectivas, demoliciones selectivas,  ocupación parcial de espacios e instalaciones mientras otras se desalojaban, etc,